Property
Details - 1478 N Tenmile Lake,
Lakeside OR 97449
AVAILABLE
Beginning July 1st 2011
- Book Now!

Overview
This picturesque lakefront
cottage is adjacent to the main
house with a connecting trail
that follows the lake around the
point. The property is only
accessible by boat. Boat rentals
are available at
Lakeside
Marina or you can
launch your own boat at any of
the boat launches on the lakes. We recommend the
county
launch or the
North Lake
Resort for launching
your own boat.
The Lakefront Cottage offers
amazing views in a very private
setting.
These photos were taken
during construction and will be
updated once all work is
complete. Please ignore the mess
and know that the property will
be perfect at completion.
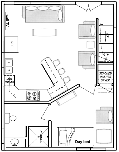
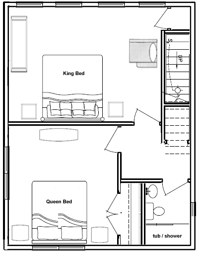
Lake Cottage
Features (floor plan
below)
Newly updated and
furnished
King sized master bedroom
Queen size second bedroom
Full size day bed (main
level)
Loft with 2 queen size beds
2 full baths
Full Kitchen
No Smoking and no pets
Amenities
Gazebo with fire pit
Flat Panel TV with DVD
(bring DVDs, sorry no cable
or satellite service)
BBQ
Large deck and dock
Scenic and private setting
Washer / Dryer
Microwave
Dishwasher
Refrigerator with ice maker
Activities
Boating (onsite) Fishing
(onsite) Jet Skiing (onsite)
Water Skiing (onsite) Water
toys (onsite) Lake (onsite)
Sailing (onsite) Grocery
Store (1 mile) Ocean (6
miles) Restaurant (1 mile)
Bowling (13 miles)
Hiking (3 miles) Shopping
Area (14 miles) Ocean
Beaches (5 miles) Oregon
Dunes (5 miles) Casino (15
miles) Deep Sea Fishing (6
miles) Movie Theater (15
miles) - ATV Rentals (6
miles), Whale Watching (6
miles)
Due to liability
constraints, the ski boat,
sled boat and jet skis that
belong to the property CAN
NOT be used by renters. Boat
and jet ski rentals are
available at
Lakeside
Marina
or you can bring your own
equipment.
Phones - Land line and
cellular
Although we can not
guarantee that your cell
phone will work, cell
coverage form the house is
very good with most
carriers. Sorry - no internet
or land line service.
Location Map / Directions
Lakeside is located directly
off the 101 - Oregon Coast
Highway. 1467 N Tenmile is
located on the North Lake -
Blacks Arm as show in the
location map below. You will
need to orient yourself from
your launch point on the lakes to find your
way to the property.

Floor Plan
Level 1

Level 2

Loft
(low ceiling)

