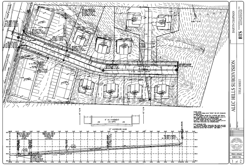
The Alec Hills Subdivision
has received Preliminary Subdivision Plan Approval
from the City of Roseburg.
The preliminary approval
will provide for lots 1 and 2 to be divided into 11
high density (MR29) residential lots. Lot 3 is not
planned for further division at this point in time.
 | MR29 zoning |
 | City services
on site |
 | Nice setting
with valley views |
 | Close to town
|
M29 ZONING ALLOWS FOR 29 UNITS PER ACRE AND
DIVISION TO AS SMALL AS 4,000 SQ FT. LOTS. BUYER TO
CONFIRM USES WITH CITY OF ROSEBURG.
PRELIMINARY APPROVAL OF 11 LOT HIGH DENSITY
RESIDENTIAL PROPERTY WITH VIEWS OR DON'T DIVIDE AND
GET HIGHER DENSITY WITH APARTMENTS. IDEAL FOR
APARTMENT BUILDING OR OTHER MULTIFAMILY STRUCTURES.
EXISTING HOME ON LOT 1 - AS-IS, VALUE IN LAND.